返回首页

Studycadcam-3D   51-60

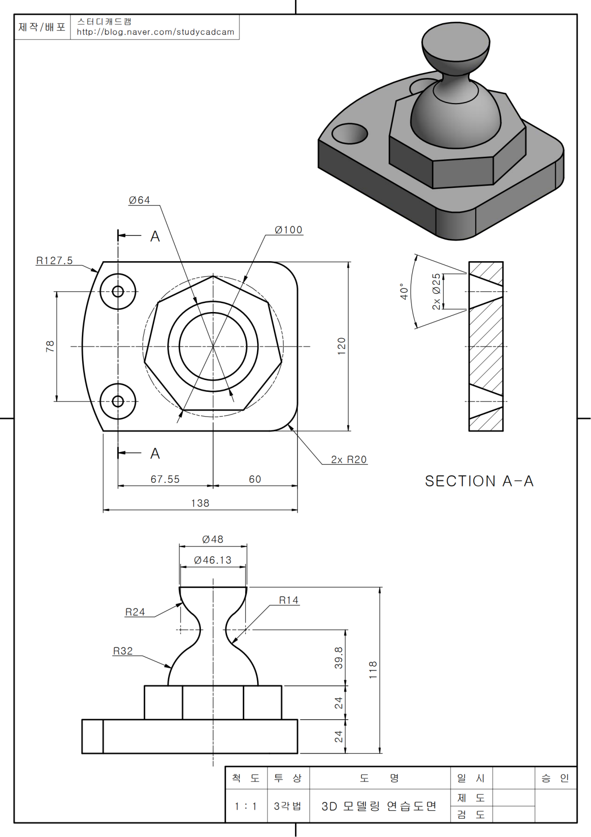
51

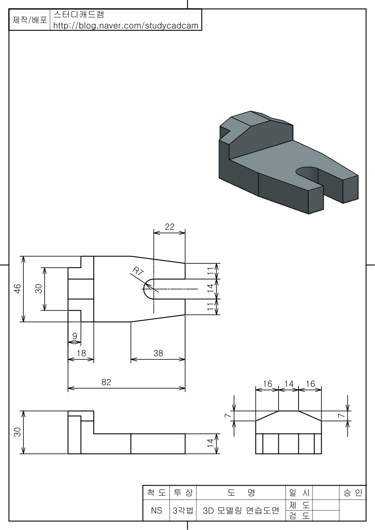
52

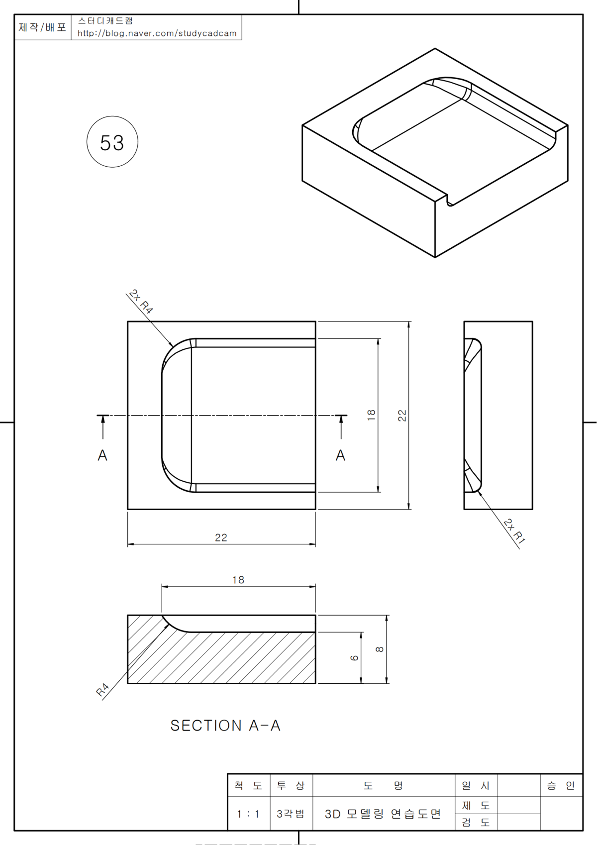
53

54

55

56

57

58

59

60