返回首页

Studycadcam-3D   131-140

131

132

133

134

135

136

137

138

139

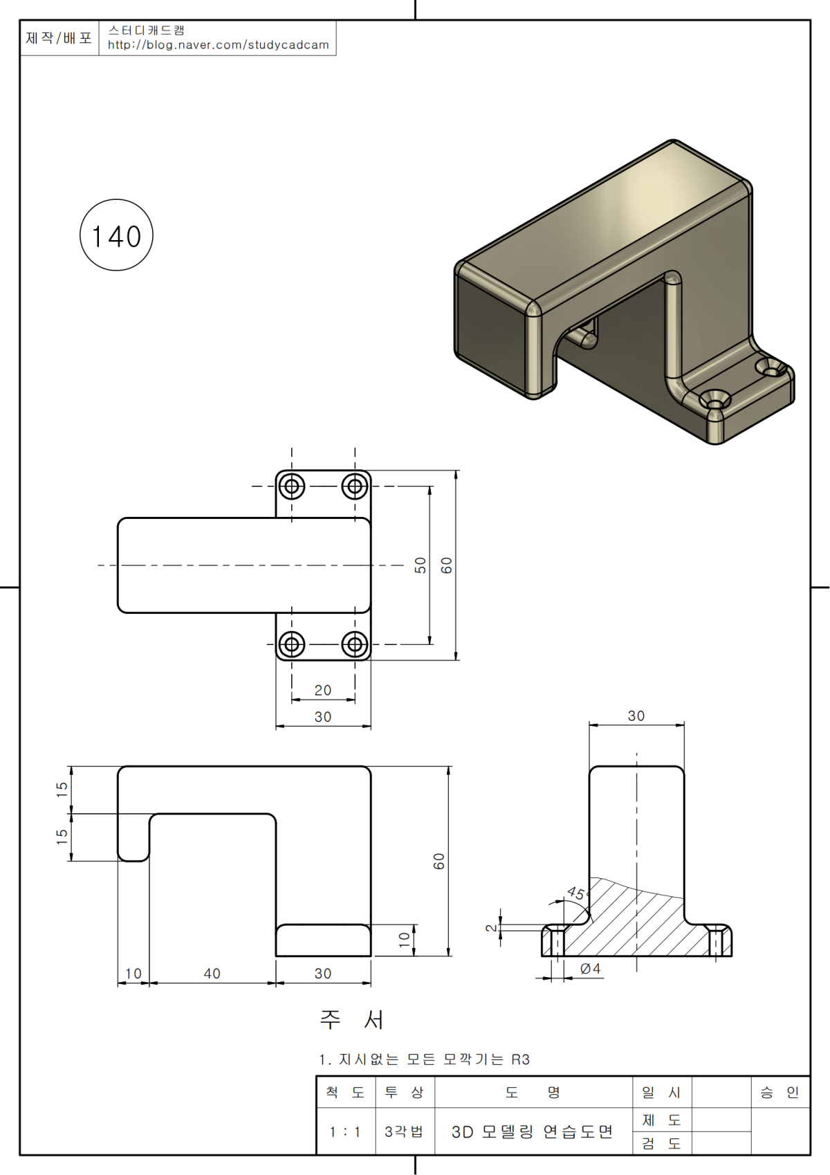
140