返回首页

Studycadcam-3D   11-20

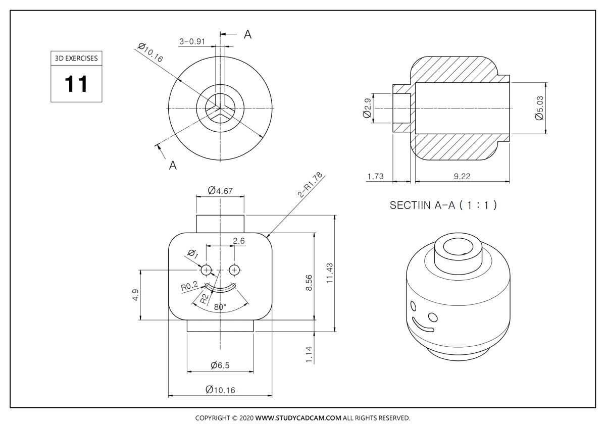
11

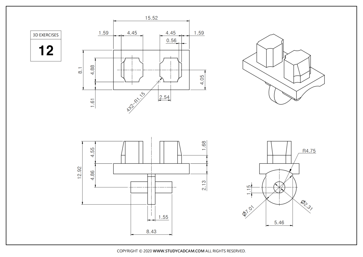
12

13

14

15

16

17

18

19

20