返回首页

Studycadcam-3D   1-10

1

2

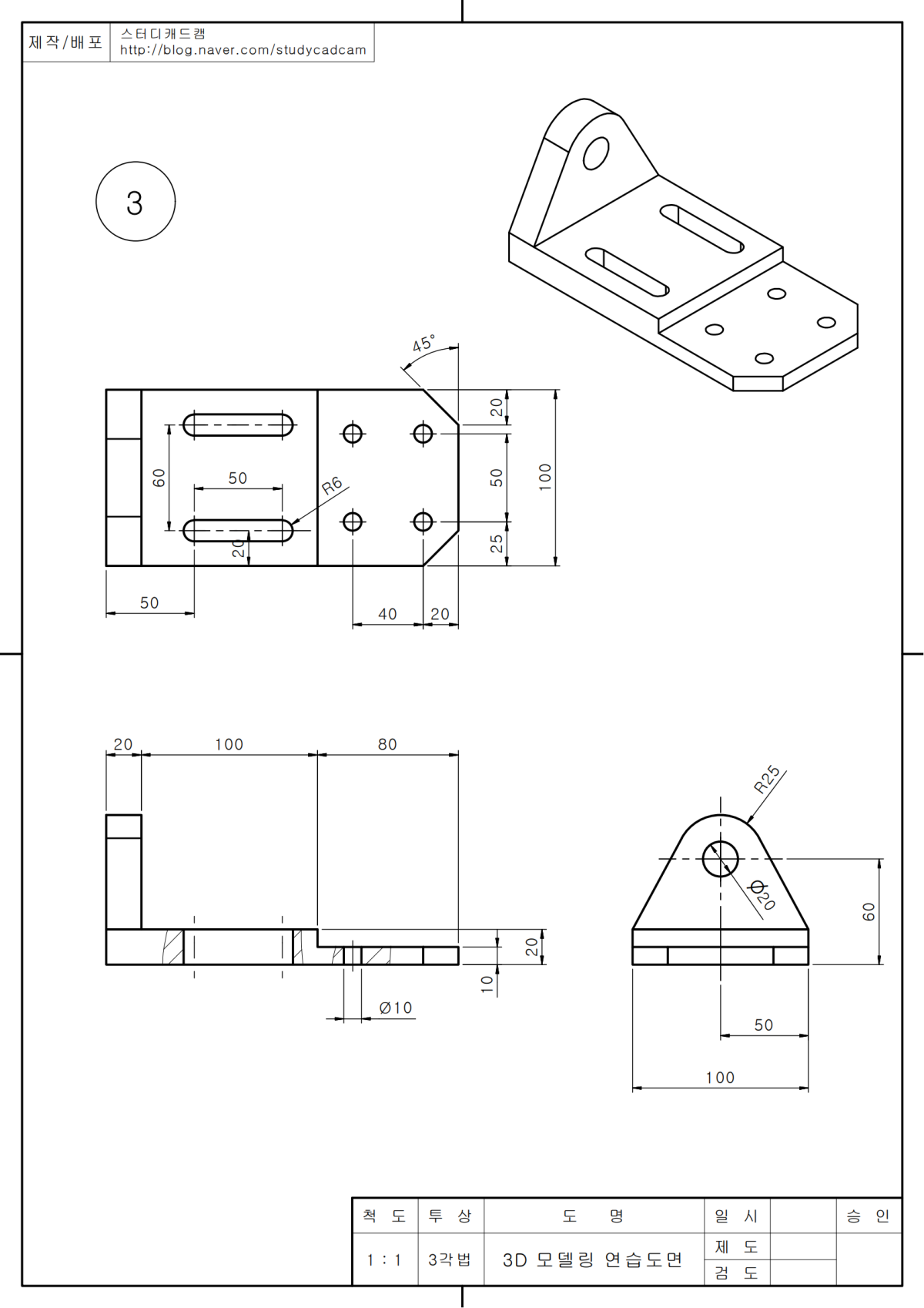
3

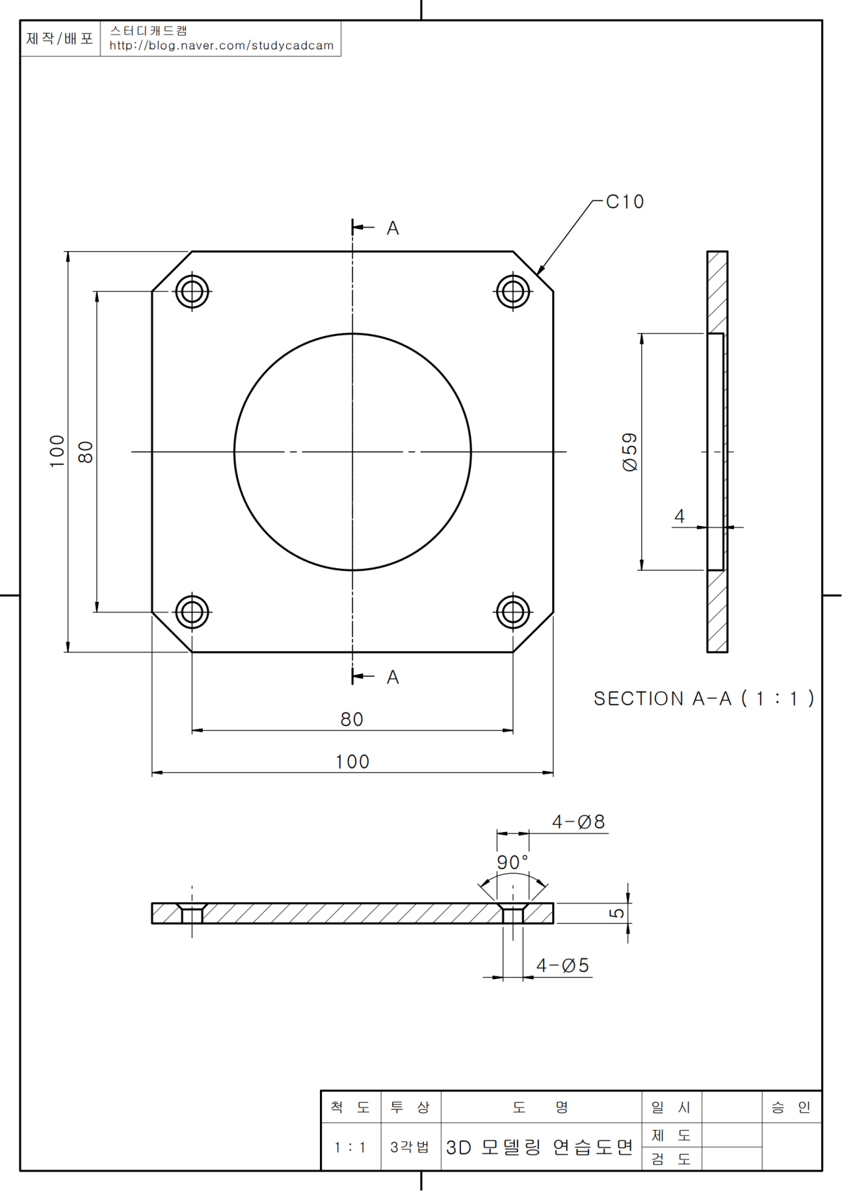
4

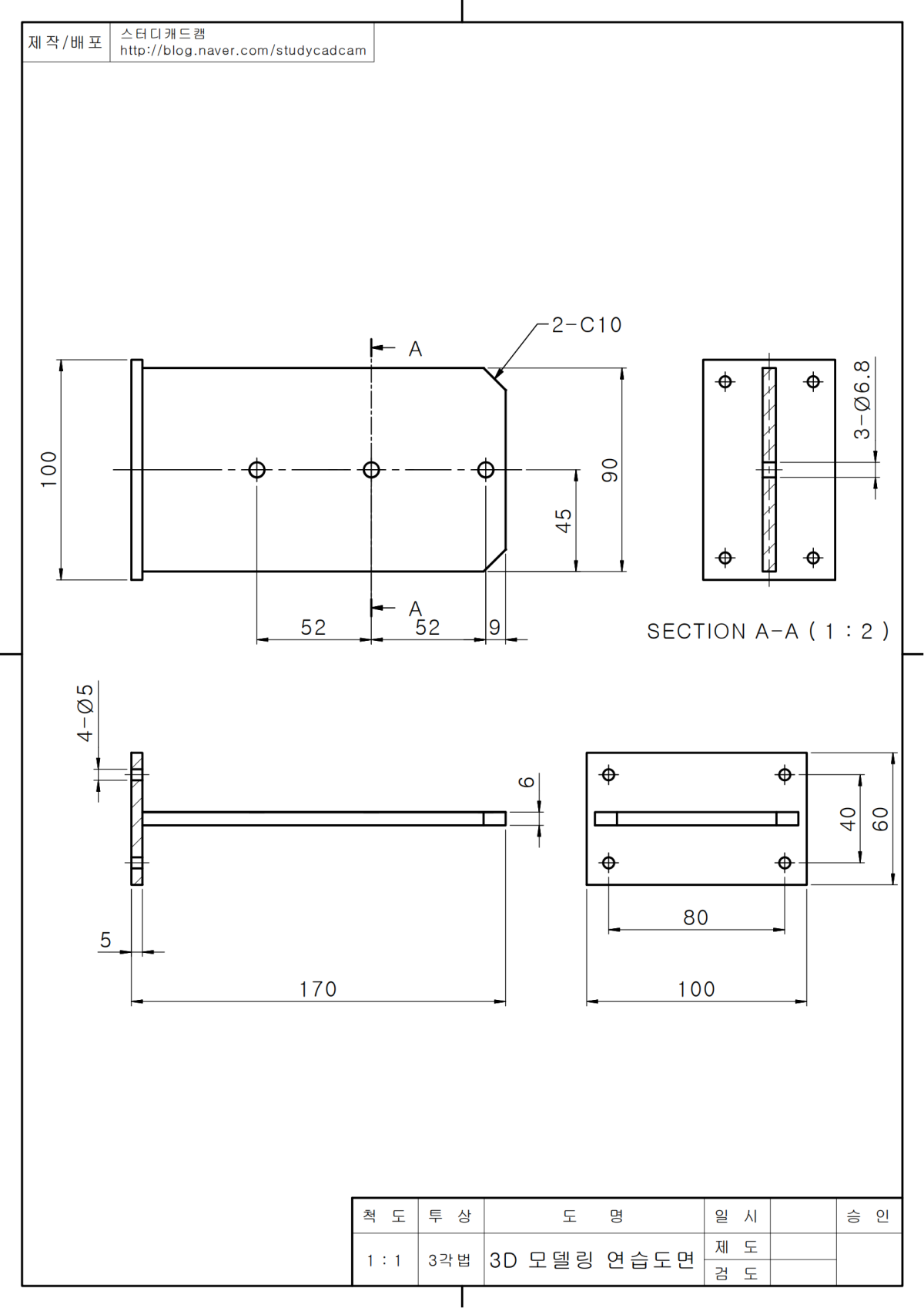
5

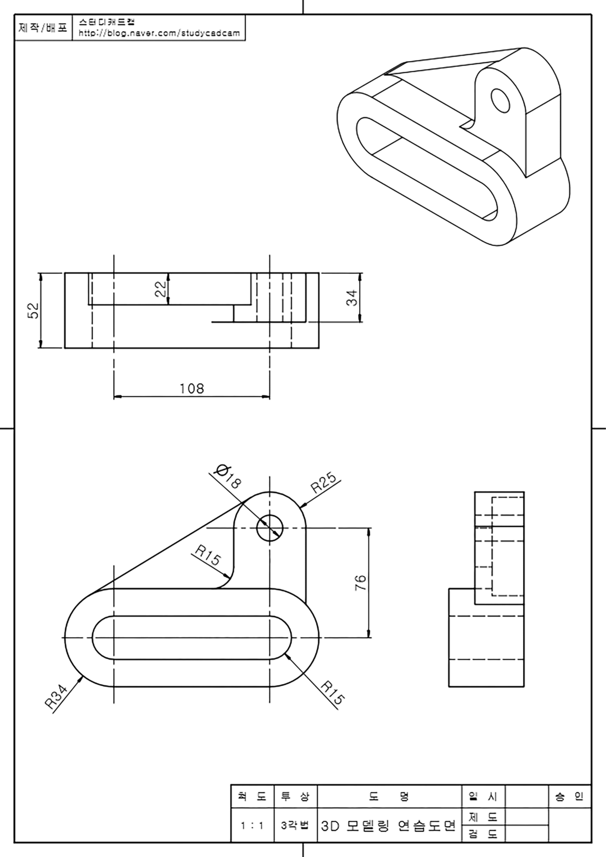
6

7

8

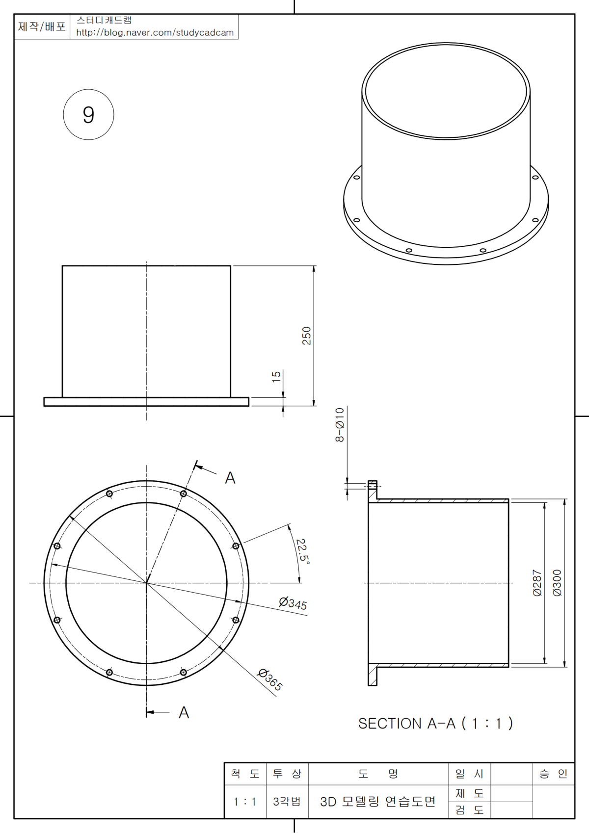
9

10