返回首页

3D练习素材 第一部分 1-10

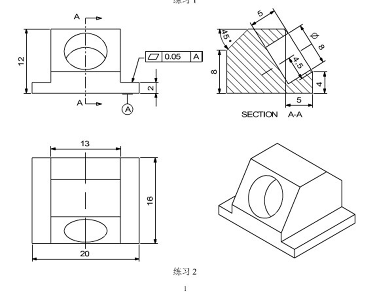
1

2

3

4

5

6

7

8

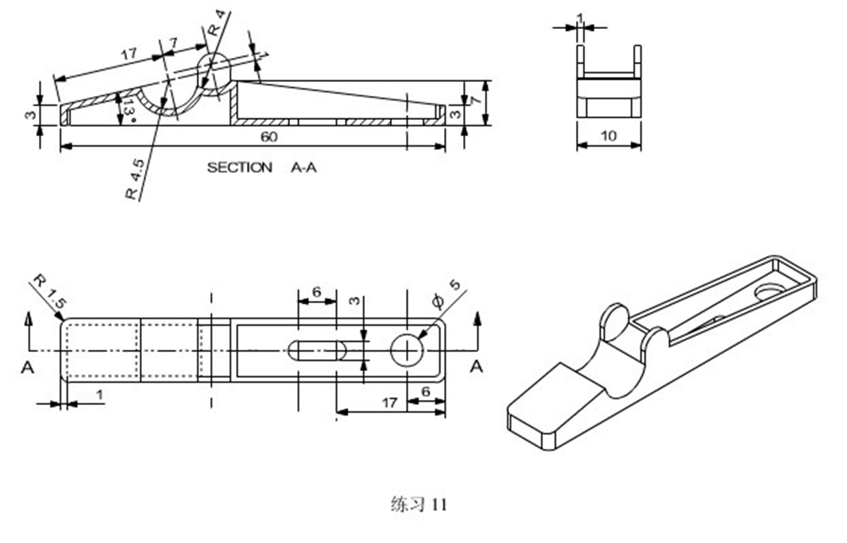
9

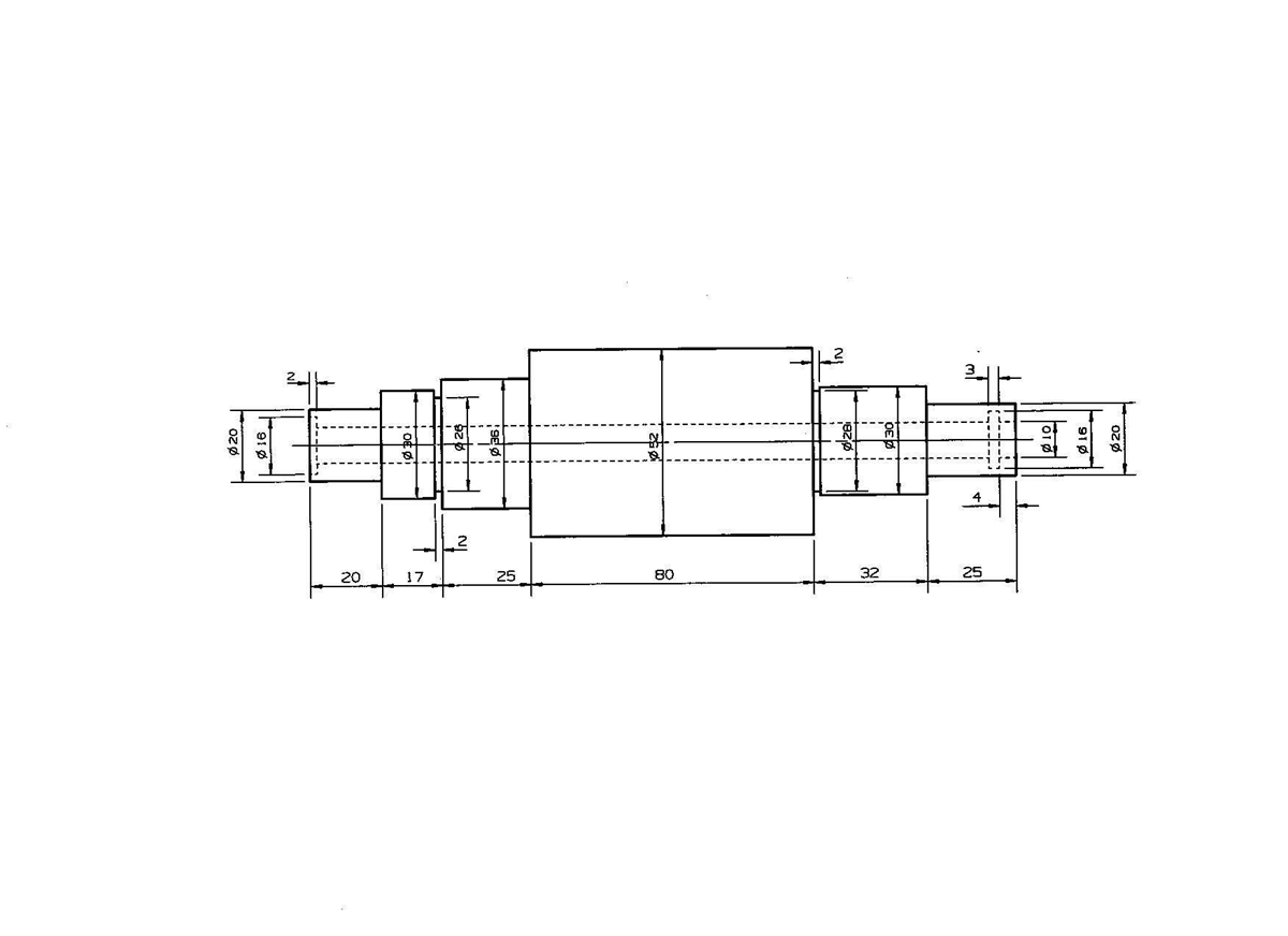
10